
Reihenhaus, 7 Zimmer, 216 m²
Stadthaus mit Garten und Dachterrasse, Inhouse-Garage, Keller
Reihenhaus, 7 Zimmer, 216 m²
An der alten Gärtnerei 41, 12109 Berlin
Um diese Karte ansehen zu können, aktivieren Sie bitte die Dienste Dritter in den Cookie-Einstellungen.
Wir informieren Sie gern
Persönliche Beratung ohne Anmeldung
sonntags, 11–14 Uhr
Am 01.05.2026 und 14.05.2026 finden keine Beratungen statt.
Kontaktieren Sie auch gern unser Infotelefon: 0800 670 80 80.
Hochwertiges Reihenhaus mit Dachterrasse und Inhouse-Garage
Erleben Sie ein großzügiges Stadthaus mit 7 Zimmern, Garten, mehreren Grundrissvarianten und vielem mehr.
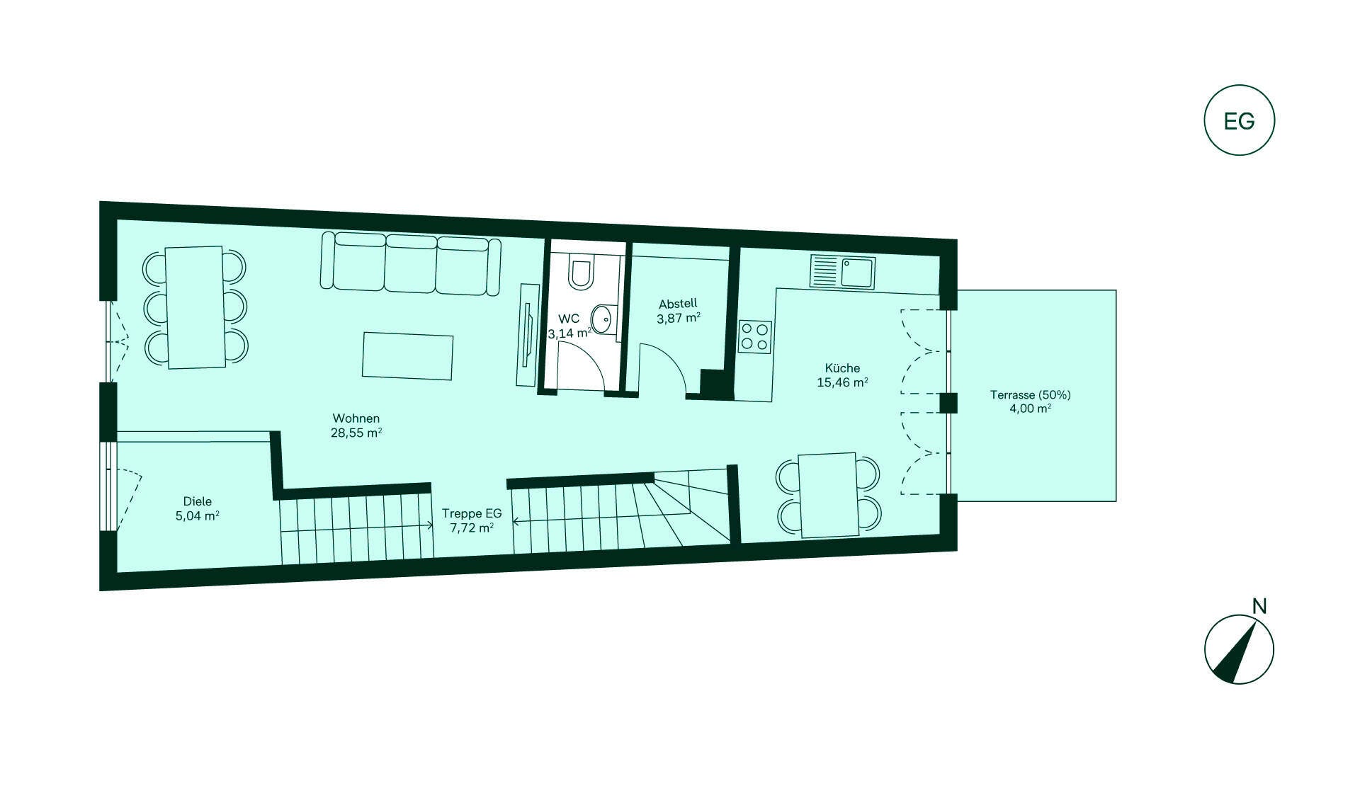
Willkommen in Ihrem neuen Zuhause, das sie ganz praktisch über die Inhouse-Garage im Untergeschoss betreten können. Vorbei an Hauswirtschaft- und Abstellraum gelangen Sie über die Treppe in das Erdgeschoss und somit den Wohnbereich. Hier begrüßt Sie ein lichtdurchflutetes Wohnzimmer und führt Sie weiter zum Gäste-WC, einem Abstellraum und der Küche mit Essbereich. Letztere bietet auch Zugang zur Terrasse. Im Obergeschoss erwarten Sie insgesamt drei Zimmer für Kinder, Hobbys und Büro sowie ein modernes Tageslichtbad mit Dusche und Badewanne. Im Dachgeschoss finden Sie ein Schlafzimmer mit eigenem Bad, das Dachstudio und eine gemütliche Dachterrasse für entspannte Stunden im Freien. Weitere Annehmlichkeiten wie Marken-Designböden, Malervlies an den Wänden, elektrische Rollläden, eine Fußbodenheizung und ein Wäscheschacht sind ebenfalls mit dabei.
Drei Grundrissvarianten möglich: Je nach Bedarf kann die Raumnutzung optimal für Familien, für Selbstständige oder Menschen mit besonders großem Platzbedarf zugeschnitten werden. Wählen Sie aus den Grundrissvarianten „Familie“, „Büroraum“ oder „Freiraum“ Ihre gewünschte Grundrisslösung, natürlich ohne Aufpreis. Wir beraten Sie gern.
Festpreisgarantie für Ihre Planungssicherheit
Mit unserer Festpreisgarantie bleibt Ihr vertraglich vereinbarter Kaufpreis unverändert. Sie wählen Ihre Wunschimmobilie zu dem entsprechenden Kaufpreis, ohne versteckte Kosten. Selbst bei schwankenden Rohstoffpreisen behalten Sie von Anfang an finanzielle Klarheit und können mit einem sicheren Gefühl planen.
Ihre Vorteile im Neubauprojekt
Die ringförmige, moderne Wohnanlage, die hellen Hausfassaden und das integrierte, ovale Nahversorgungs-Zentrum mit Supermarkt, Cafe und Kita machen Eindruck. Die üppig begrünten Erholungsflächen und Spielplätze schaffen Lebensqualität. Ein echter Glücksgriff für Familien.
- Fußbodenheizung
- inklusive erschlossenem Grundstück
- Marken-Designböden
- Malervlies an den Wänden
- Wäscheschacht

Bonava ist einer der führenden Projektentwickler in Deutschland. Unsere Stärke ist Ihre Sicherheit.
Gute Gründe für Bonava
Wie lässt sich Ihr Wohneigentum am besten finanzieren? Gemeinsam mit unserem langjährigen Partner Interhyp unterstützen wir Sie bei der Finanzierungsplanung. Sie erhalten eine kostenfreie, unabhängige Beratung, haben alle Möglichkeiten im Blick und entscheiden in Ruhe, was zu Ihnen passt.
Finanzierungsberatung anfragen
Bequem ankommen, trocken aussteigen und direkt ins Zuhause gehen: Die integrierte Inhouse-Garage macht das Parken im Reihenhaus besonders komfortabel. Von hier aus gelangen Sie geschützt ins Untergeschoss und weiter in den Wohnbereich – praktisch im Alltag, angenehm bei jedem Wetter und ideal für Einkäufe, Kinderwagen oder Fahrräder.

Um diesen virtuellen Rundgang ansehen zu können, aktivieren Sie bitte die Dienste Dritter in den Cookie-Einstellungen.

In diesem Neubauquartier gibt es noch nicht veröffentlichte Häuser. Kontaktieren Sie gern unseren Verkaufsberater, um alle Immobilienangebote zu erhalten.