
Eigentumswohnung, 3 Zimmer, 78 m²
Eigentumswohnung, 3 Zimmer, 78 m²
Hordisstraße 25b, 04420 Markranstädt
Dieses Neubauprojekt ist leider ausverkauft. Entdecken Sie jetzt weitere Angebote in Leipzig.
Zurück zum Projekt
Um diese Karte ansehen zu können, aktivieren Sie bitte die Dienste Dritter in den Cookie-Einstellungen.
Hell, familienfreundlich und bezugsfertig
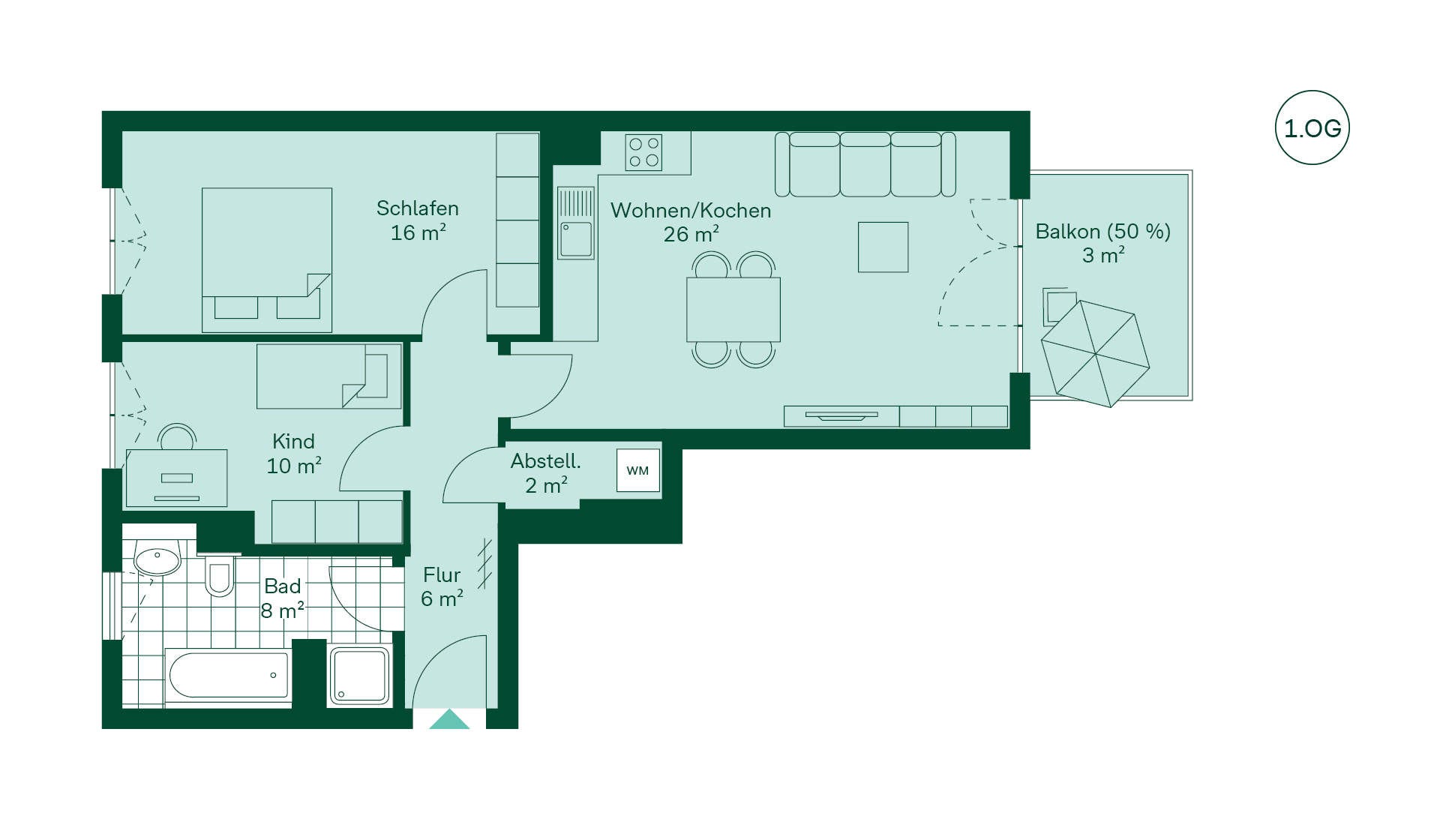
Was will Familie mehr? Die traumhafte, neue und bezugsfertige Eigentumswohnung befindet sich im 1. Obergeschoss und beeindruckt mit einem großen, sonnigen Balkon und drei hellen Zimmern.
Die neue Eigentumswohnung befindet sich in unserem Neubauprojekt Obstgärten in Markranstädt. Die Entscheidung für ein neu gebautes Zuhause ist eine der wichtigsten Entscheidungen Ihres Lebens und eine der besten, die Sie jemals treffen werden. Denn Sie werden sofort spüren, wenn Sie Ihr Zuhause gefunden haben und es kaum noch erwarten können, einzuziehen.
Nur noch Möbel rein und fertig
Juhu, es ist geschafft: Die Eigentumswohnungen sind jetzt bezugsfertig und so langsam füllt sich das Quartier mit Leben. Suchen auch Sie ein neues, fertiges Zuhause? Es stehen noch wenige freie Wohnungen zur Verfügung.

Um diesen virtuellen Rundgang ansehen zu können, aktivieren Sie bitte die Dienste Dritter in den Cookie-Einstellungen.