Wir empfehlen einen anderen Browser zu nutzen, damit die Webseite bestmöglich dargestellt werden kann.
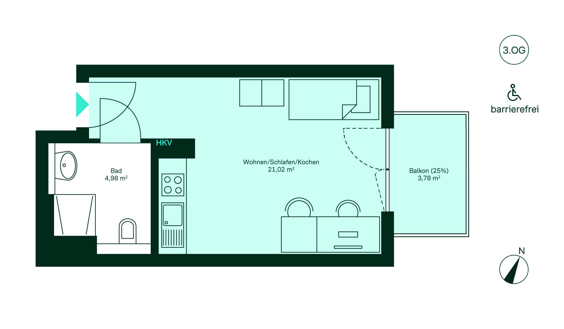
Grundriss des Mini-Apartments im Neubauprojekt Ruetscherhof